760.000€
5 bedroom apartment, converted into a T4 with a Charming Renovation and located in Central Lisbon
An apartment originally with 5 bedrooms and now converted into a T4, through a renovation full of Charisma, Quality and Charm.
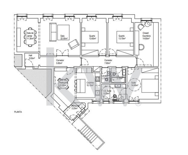
With a gross private area of approximately 169 m2, this Apartment consists of 4 bedrooms, 1 en suite, measuring 14.40 m2 and three further bedrooms measuring 14.85 m2, 13.60 m2 and 13.70 m2. In its social area, it has a large living and dinning room measuring 33.33 m2 and an extensive corridor with depth and potential to decorate with your future family memories. It also has 2 bathrooms, in addition to the one serving the main bedroom. All rooms in this apartment have pre-installation of air conditioning and windows with thermal and acoustic insulation.
The kitchen is 22.15 m2 and is designed with a focus on planning and living the family life. It incorporates a dining area and several storage spaces. It also has a service area of 3.25 m2. It is equipped with a stove, oven, microwave, refrigerator, dishwasher, extractor fan, water heater and washing machine and dryer. All equipment mentioned is from the AEG brand. It also has a storage room and a terrace for common use by the building’s residents.
The Apartment is located in a building with an elevator, very well maintained and organized.
Located in a central area that will allow you to walk to essential points of Commerce, Health, Education and Services. Your future home is surrounded by different access and public transport options, within walking distance of the essentials points of daily life.
Feel the privilege of living close to Saldanha, Marquês de Pombal, Amoreiras and Parque Eduardo VII. All of this, within a 15 minutes drive from Lisbon Airport.
This is your opportunity to feel the vibrancy and dynamics of living in the City of Lisbon, in a charming, welcoming and peaceful apartment, oriented towards your comfort and well-being.
Contact me to find out more information and book your visit.
This property is raised on an exclusive basis.
We share with all real estate agents / professionals on a 50% / 50% basis.





























